Telefon: (+36) 30 348 1940
Email: info@ujraotthon.hu,
Cím: 1132 Budapest
Visegrádi utca 47/b
ZÖLDRE NÉZŐ, ERKÉLYES OTTHON A CORVIN NEGYEDBEN – VALÓSÍTSA MEG ÁLMAIT!
Leírás
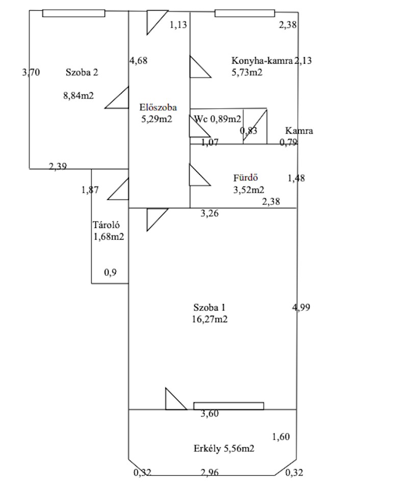
Eladó egy kiváló elosztású, 46 nm-es, 2 szobás panelprogram előtti lakás Budapest VIII. kerületének egyik csendes, parkosított részén. Az ingatlan a 3. emeleten található, így világos és barátságos terek várják az új tulajdonost.
Miért érdemes ezt a lakást választania?
Zöld panoráma: Az erkély nem a város zajára, hanem egy megnyugtató, fás-parkos részre néz. Itt valóban kiülhet kávézni!
Ideális elosztás: A két külön nyíló szoba kényelmes életteret biztosít pároknak, egyedülállóknak vagy befektetési célú kiadásra is.
Saját ízlésére formálhatja: A lakás felújítandó állapotú, így nem kell megfizetnie más ízlését – olyan burkolatokat és konyhát választhat, amilyenről mindig is álmodott.
Kiváló emelet: A 3. emelet még kényelmesen elérhető, ugyanakkor már kellően távol van az utcafronttól.
Paraméterek:
Méret: 46 nm
Szobák száma: 2
Emelet: 3.
Kültér: Saját erkély
Kilátás: Csendes mellékutca, zöldövezet
Környék és közlekedés:
A lakás elhelyezkedése kiváló: a közelben minden megtalálható, ami a mindennapi élethez szükséges (boltok, gyógyszertár, iskolák). A tömegközlekedésnek köszönhetően a belváros percek alatt elérhető, mégis egy nyugodtabb, szellősebb részen hajthatja álomra a fejét.
Kiknek ajánlom?
Első lakásvásárlóknak, akik saját fészket építenének, vagy befektetőknek, hiszen a VIII. kerület ezen része folyamatosan fejlődik és kiválóan bérbe adható.
Irányár: 59 900 000 Ft
Ne maradjon le róla! Hívjon még ma, és nézzük meg együtt a lakásban rejlő lehetőségeket!
Tehermentes, 1/1 tulajdon.
Cím
-
Ország Magyarország
-
Province/State Pest megye
-
City/Town Budapest
Ismertetés
- Ingatlan azonosító (ID) 6065
- Ár 55,0 M Ft
- Ingatlan típusa Lakás
- Ingatlankínálat típusa Eladó
- Szoba 2
- Fürdőszoba 1
- Építés éve 1980
- Méret 46 m2
- Felirat azonnal költözhető, csendes, erkély, felújítandó, lift
